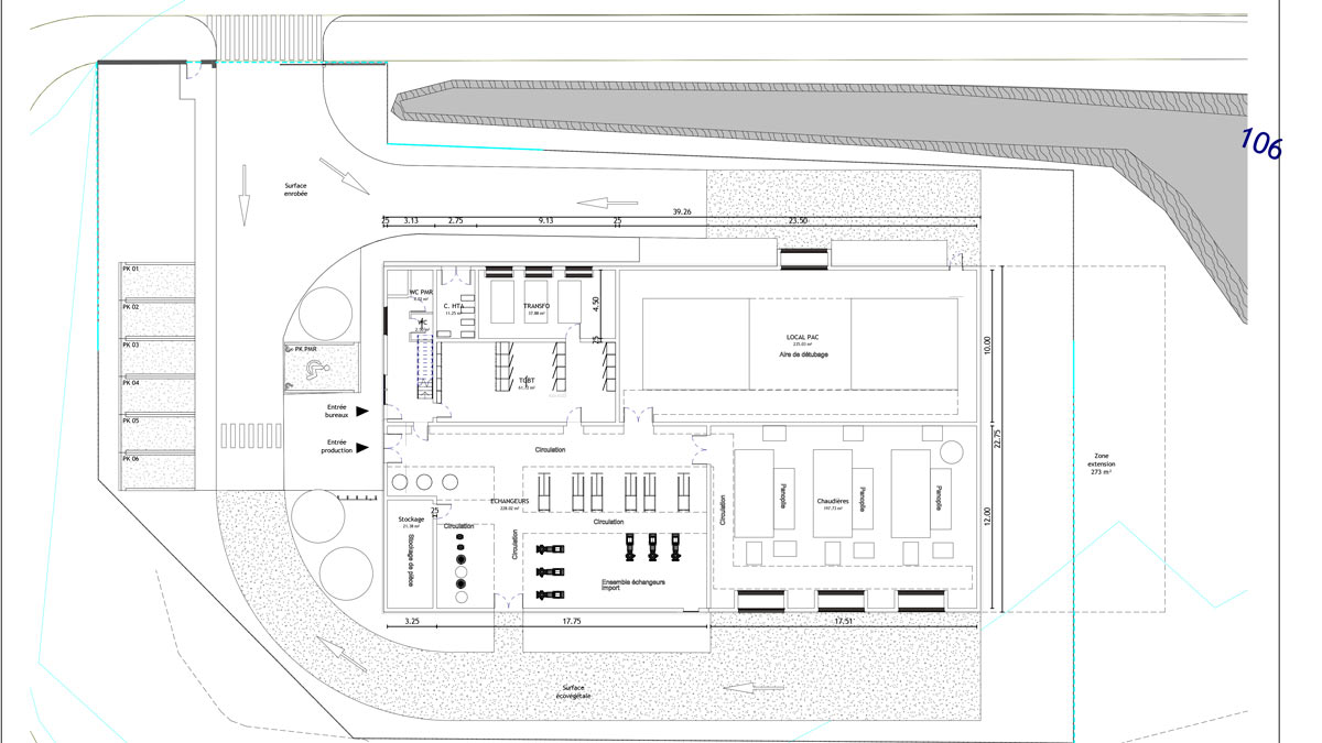
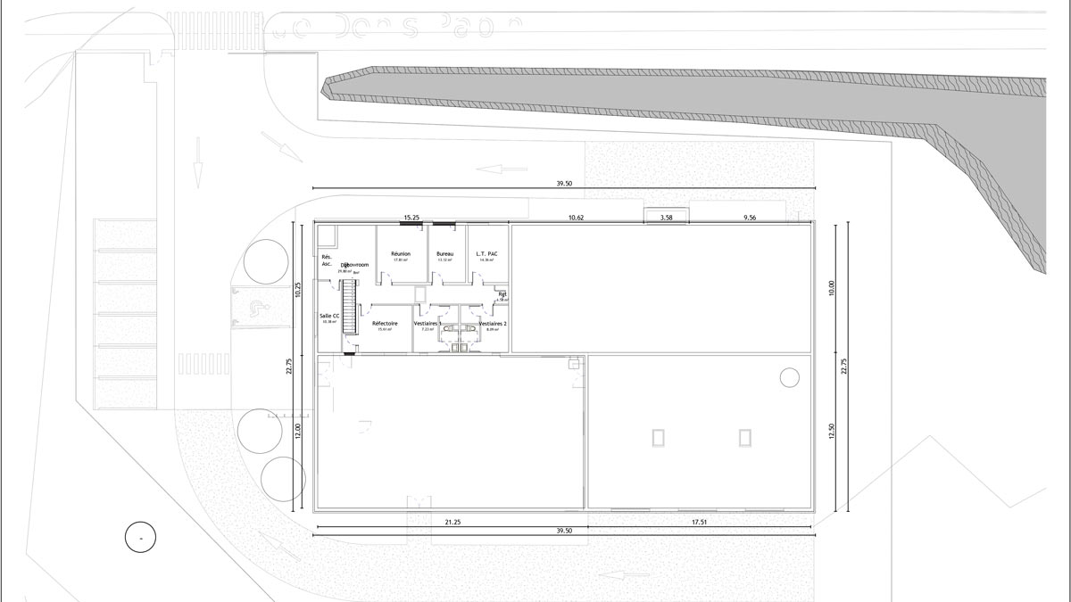
Chaufferie collective sur eaux usées step à Garges-Lès-Gonesse (95)
Le projet consiste dans l’intégration urbaine d’une chaufferie de production de chaleur destinée a la ville de Gonesse. Très compact et organisé autour du process de production, le projet utilise un bardage translucide offrant un traitement lumineux spécifique créant un signal en entrée de ville.
L’ergonomie fonctionnelle pour l’exploitation est particulièrement soignée et mise en avant. Les extérieurs sont choisis en limitant au maximum les zones imperméables et les revêtements infiltrants sont utilisés pour toutes les zones de manœuvres ponctuelles.
LIEU
Garges-Lès-Gonesse (95)MAÎTRE D’OUVRAGE
Paris Terre d’EnvolMAÎTRE D’ŒUVRE
ENGIE Solutions + Studio EDEN + MerlinNATURE DE L’OPÉRATION
Conception construction d’une chaufferie géothermieNATURE DE LA MISSION
Maîtrise d’œuvre complèteBUDGET TRAVAUX HT
12 M€CONCOURS
2022SURFACE DU PROJET
1 100 m²Date:
25 octobre 2024
Catégorie:
